Project Image

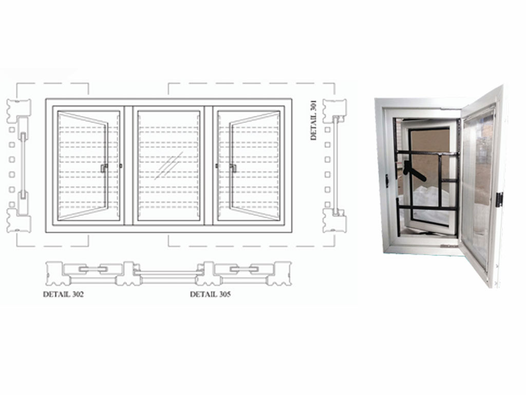
B-3000 Series Window

B-3000 series is a premium range of casement or openable windows that includes air ght glass shu er for soundproofing, A MS grill provision for added security, flymesh shu er for ven la on while keeping Dust out. There is an op on to fix DGU glass (Double Glazed Unit) in this system for superior sound proofing. This series is highly preferred by the architectural community for its blend of security, elegance & advanced soundproofing feature.
These windows are best suited for high and residen al & hospital buildings

Specifica ons for 3000 Series

Pre-painted Steel (Base Steel as per IS 513 of 0.6mm thickness, galvanized as per IS 277 with Zinc of 120 GSM)